Satellite Aristia JB99 In Andheri East By Satellite Group | PR1180002500901
Discover JB99 also known as Satellite Aristia, an exclusive residential address in JB Nagar, Andheri East, designed for those who seek comfort, convenience, and elevated living. Thoughtfully planned and crafted with modern architecture. JB99 brings you spacious homes, premium amenities, and a lifestyle that blends elegance with everyday practicality. Located just minutes from Chakala Metro Station, business hub, top schools and vibrant social infrastructure, Satellite Aristia ensures you stay connected to everything that matters while enjoying the calm of a well-developed neighbourhood.
FIRST FREEHOLD LAND DEVELOPMENT IN JB NAGAR
❌ NO REDEVELOPMENT
❌ NO SRA
❌ NO MHADA
Satellite Group Legacy Behind The Landmark
🔸50+ Years of Excellence
🔸62+ Projects Completed
🔸50+ Lakh Sqft Delivered
Satellite Aristia JB99 Key Highlights:-
✨Jain Temples located in the closest proximity
✨Modern design with larger yet efficient layouts
✨Located in the prime neighborhood of JB Nagar, Andheri East
✨Excellent connectivity to metro, Western Express Highway, Airports & commercial hubs
✨Trusted development backed by Group Satellite’s Legacy
✨Amenities designed for comfort, safety & lifestyle enhancement
✨Convenience-focused living with all essentials nearby
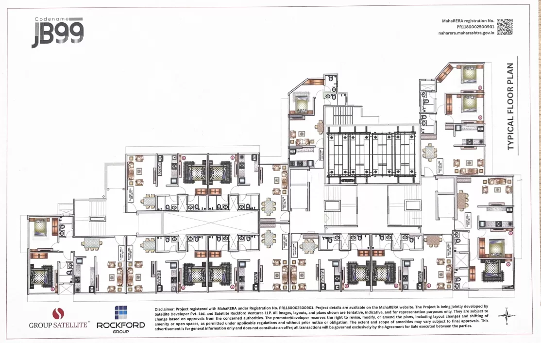
Satellite Aristia JB99:-
– Offering Smart 1BHK, 1.5BHK & 2BHK
– All Flats Are Vastu Compliant
– Well Designed Main Entrance Lobby
– Waiting Lounge At Lobby Area
– Indoor Kids Play Area
– Outdoor Kids Play Area
– Landscaped garden spaces
– Fully equipped modern gymnasium
– Rooftop swimming pool
– Walking and wellness pathway
– Rooftop leisure and relaxation zones
– Elegant entrance lobby
– High-speed elevators
– Advanced security systems
Please Feel Free To Call For Further Information And Site Visit
+919664315175 | +917045688812
Satellite Aristia JB99 MahaRERA Registration No. PR1180002500901
Satellite Aristia JB99 Download E-Brochure | Costsheet | Payment Plans | Floor Plans | Location Map









